Örömmel mutatjuk be Szeged Csongrádi sugárút 34. sz épülő társasház projektünket.
A projekt keretében egy Török Csongor Építésziroda által tervezett, 10 lakást és 1 irodát magában foglaló –, lifttel felszerelt, korszerű társasház valósul meg. A fejlesztés kifejezetten azok számára készül, akik új otthonuk kiválasztásakor az átlagosnál magasabb műszaki tartalmat és minőséget tartanak fontosnak. A projekt megvalósítása során kizárólag prémium minőségű, megbízható és elismert gyártóktól származó anyagokat és beépítésre kerülő tartozékokat alkalmazunk.
A projekt főbb jellemzői:
- Modern építészeti megoldások: A ház a legkorszerűbb műszaki megoldások és kizárólag minőségi alapanyagok felhasználásával készül.
A szerkezet Porotherm xtherm okostéglából épül, amelynek hőszigetelő képessége 40-60%-kal jobb, mint az ugyanolyan falvastagságban kapható hagyományos, nút-féderes falazóelemeké.
20 cm-es EPS hőszigetelés. A műanyag nyílászárók a külső oldalon színezettek és 80mm-es profilvastagsággal. - tető Prefa P10 alumínium korcolt lemezfedés
- Lakások mérete: Az épület tíz lakást és egy irodát foglal magában, a lakások alapterülete 43 m² és 135 m² között változik.
- Energiatakarékos kialakítás megújuló energiával: Bosch hőszivattyús rendszer, Viega mennyezethűtés és padlófűtés gondoskodik a fenntartható működésről és az egyenletes, komfortos hőérzetről.
- Okosotthon rendszer: minden lakóegység a modern életvitelhez igazított Smart Pierre vezérléssel ellátott, amely magában foglalja a hűtés-fűtés, árnyékolás és kaputelefon funkciókat, valamint távoli elérést is biztosít.
Lessen be az építkezésre


















A ház műszaki tartalmát és alaprajzait letöltheti a gombra kattintva.
lakások
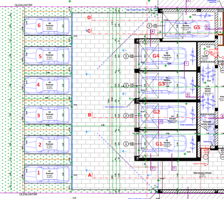
Földszint iroda / üzlethelyiség ( 43,29 m²)
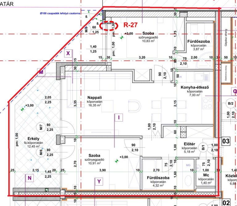
1. emelet 1. lakás ( 78,96 m²)
Lakás alapterülete: 65,76 m²
Erkély: 26,40 m² – utcai
Teljes nettó alapterület: 78,96 m²
A lakás elrendezése
Előtér: 3,3 m², Konyha: 6,02 m²
Nappali-étkező: 16,88+6,26 m²
Fürdőszoba wc-vel: 4,28
Fürdőszoba: 4,41 m²
wc: 1,20 m²
közlekedő: 1,45 m²
Szoba: 10,63 m²
Szoba: 11,29 m²
Erkély: 26,68 m²
Kulcsrakész ár: 112 500 000 Ft
1. emelet 2. lakás (65,83 m²)
Lakás alapterülete: 59,63 m²
Erkély: 12,40 m² – udvari
Teljes nettó alapterület: 65,83 m²
A lakás elrendezése:
Erkély: 12,63
Kulcsrakész ár: 95 500 000 Ft
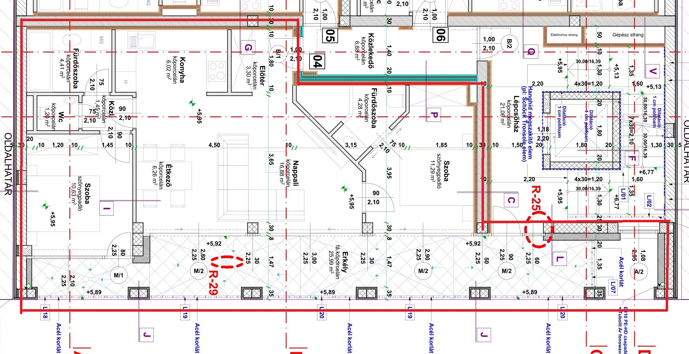
2. emelet 4. lakás ( 78,72 m²)
Lakás alapterülete: 65,72 m²
Erkély: 25,99 m² – utcai
Teljes nettó alapterület: 78,72 m²
A lakás elrendezése
Előtér: 3,30 m²
Nappali+Konyha+Étkező: 29,16 m²
Fürdőszoba: 4,41 m²
Közlekedő: 1,45 m²
wc: 1,20 m²
Fürdőszoba: 4,28 m²
Szoba: 10,63 m²
Szoba: 11,29 m²
Erkély: 26,23 m²
Kulcsrakész ár: 112 500 000 Ft
2. emelet 5. lakás ( 65,83 m²)
Lakás alapterülete: 59,63 m²
Erkély: 12,40 m²
Teljes nettó alapterület: 65,83 m²
A lakás elrendezése
Nappali-étkező: 21,89 m²
Konyha: 4,83 m²
Szoba: 12,77 m²
Közlekedő: 3,24 m²
Szoba: 9,45 m²
Fürdőszoba wc-vel: 5,95 m²
wc: 1,50 m²
Erkély: 12,63 m²
Kulcsrakész ár: 95 500 000 Ft
2. emelet 6. lakás ( 66,09 m²)
Lakás alapterülete: 59,86 m²
Erkély: 12,45 m²
Teljes nettó alapterület: 66,09 m²
A lakás elrendezése
Előtér: 5,18 m²
Nappali-étkező: 16,35 m²
Konyha: 7 m²
Szoba: 10,83 m²
Fürdőszoba wc-vel: 3,87 m²
Szoba: 11,02 m²
Fürdőszoba: 4,32 m²
wc: 1,40 m²
Erkély: 12,61 m²
Kulcsrakész ár: 96 000 000 Ft
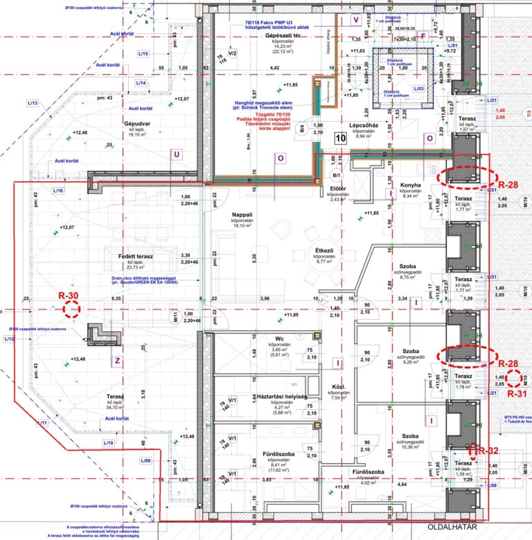
3. emelet 7. lakás ( 75,21 m²)

Lakás alapterülete: 63,34 m²
Erkély: 23,74 m²
Teljes nettó alapterület: 75,21 m²
3. emelet 8. lakás (66,25 m²)

Lakás alapterülete: 59,55 m²
Erkély: 12,40 m²
Teljes nettó alapterület: 65,75 m²
3. emelet 9. lakás (66,09 m²)

Lakás alapterülete: 59,86 m²
Erkély: 12,45 m²
Teljes nettó alapterület: 66,09 m²
Tetőtér 10. lakás (132,74 m²)

Lakás alapterülete: 99,38 m²
Erkély: 66,71 m²
Teljes nettó alapterület: 132,74 m²
Amennyiben felkeltettük érdeklődését, lépjen velünk kapcsolatba!
- iroda@antonkonstrukt.com
- +36 62 / 663 – 654
- +36 30 114 0 144


























