Gerne präsentieren wir unser Bauprojekt eines Mehrfamilienhauses in Szeged, Csongrádi sugárút 34.
Im Rahmen des Projekts entsteht ein modernes, mit Aufzug ausgestattetes Mehrfamilienhaus nach den Plänen von Csongor Török, das 10 Wohnungen und 1 Büro umfasst. Die Entwicklung richtet sich ausdrücklich an jene, die bei der Auswahl ihres neuen Zuhauses Wert auf einen überdurchschnittlichen technischen Standard und hohe Qualität legen.
Bei der Umsetzung des Projekts verwenden wir ausschließlich hochwertige Materialien sowie Einbauteile von zuverlässigen und anerkannten Premiumherstellern.
HAUPTMERKMALE DES PROJEKTS:
Moderne architektonische Lösungen:
Das Gebäude wird mit den modernsten technischen Lösungen und ausschließlich hochwertigen Materialien errichtet.
- Die Konstruktion wird aus Porotherm Xtherm Smart bricks gebaut, die eine 40–60 % bessere Wärmedämmung bieten als herkömmliche Nut-und-Feder-Mauersteine mit gleicher Wandstärke.
- 20 cm EPS-Wärmedämmung. Die Kunststofffenster sind außen farbig und haben eine Profilstärke von 80 mm.
- Dachdeckung aus Prefa P10 Aluminium-Stehfalzblech
Wohnungsgrößen:
Das Gebäude umfasst zehn Wohnungen und ein Büro, mit einer Wohnfläche zwischen 43 m² und 135 m².
Energieeffiziente Gestaltung mit erneuerbaren Energien:
Eine nachhaltige und komfortable Temperatur wird durch ein Wärmepumpensystem, Viega-Deckenklimatisierung und Fußbodenheizung gewährleistet.
Smart-Home-System:
Jede Wohneinheit ist mit dem an den modernen Lebensstil angepassten Smart Pierre-Steuerungssystem ausgestattet. Dieses umfasst Funktionen wie Kühlung und Heizung, Beschattung, Gegensprechanlage sowie eine Fernzugriffsmöglichkeit.
Die technischen Details und Grundrisse des Hauses können Sie herunterladen, indem Sie auf die Schaltfläche klicken.
Die technischen Details und Grundrisse des Hauses können Sie herunterladen, indem Sie auf die Schaltfläche klicken.
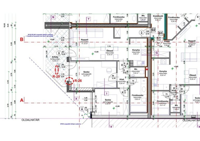
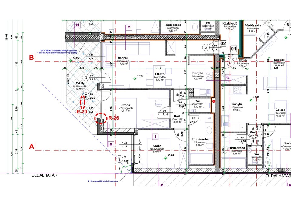
Wohnungen
Erdgeschoss Büro (43,29 m²)
OG 1. Wohnung Nr. 1 (78,96 m²)
Wohnungsgrundfläche: 65,76 m²
Balkon: 26,4 m² – Strasse
Gesamte Nettofläche: 78,96 m²
AUFTEILUNG DER WOHNUNG
Vorraum: 3,3 m²
Küche: 6,02 m²
Wohnzimmer: 16,88 m²
Badezimmer mit wc: 4,28
Badezimmer: 4,41 m²
wc: 1,20 m²
Flur: 1,45 m²
Zimmer: 10,67 m²
Zimmer: 11,29 m²
Preis Schlüsselfertig: 112 500 000 Ft
og. 1. Wohnung nr. 2 (65,83 m²)
Wohnungsgrundfläche: 59,63 m²
Balkon: 12,40 m² – Hof
Gesamte Nettofläche: 65,83 m²
AUFTEILUNG DER WOHNUNG
Balkon: 12,63
Preis Schlüsselfertig: 95 500 000 Ft
og. 2. wohnung nr. 4 (78,72 m²)
Wohnungsgrundfläche: 65,72 m²
Balkon: 25,99 m² – Strasse
Gesamte Nettofläche: 78,72 m²
AUFTEILUNG DER WOHNUNG
Vorraum: 3,30 m²
Wohn-Esszimmer, Küche : 29,16 m²
Badezimmer: 4,41 m²
Flur: 1,45 m²
wc: 1,20 m²
Badezimmer: 4,28 m²
Zimmer: 10,63 m²
Zimmer: 11,29 m²
Balkon: 26,23 m²
Preis Schlüsselfertig: 112 500 000 Ft
og. 2 wohnung nr. 5 (65,83 m²)
Wohnungsgrundfläche: 59,63 m²
Balkon: 12,4 m² – Hof
Gesamte Nettofläche: 65,83 m²
AUFTEILUNG DER WOHNUNG
Wohn-Esszimmer: 21,89 m²
Küche: 4,83 m²
Zimmer: 12,77 m²
Flur: 3,24 m²
Zimmer: 9,45 m²
Fürdőszoba wc-vel: 5,95 m²
wc: 1,50 m²
Balkon: 12,63 m²
Preis Schlüsselfertig: 95 500 000 Ft
og. 2. wohnung nr. 6 (66,09 m²)
Wohnungsgrundfläche: 59,86 m²
Balkon: 12,45 m² – Hof
Gesamte Nettofläche: 66,09 m²
AUFTEILUNG DER WOHNUNG
Vorraum: 5,18 m²
Wohn-Esszimmer: 16,35 m²
Küche: 7 m²
Zimmer: 10,83 m²
Badezimmer mit wc: 3,87 m²
Zimmer: 11,02 m²
Badezimmer: 4,32 m²
WC: 1,40 m²
Balkon: 12,61 m²
Preis Schlüsselfertig: 96 000 000 Ft
og 3. wohnung nr. 7 (75,21 m²)

Wohnungsgrundfläche: 63,34 m²
Balkon: 23,74 m²
Gesamte Nettofläche: 75,21 m²
og 3. wohnung nr. 8 (65,75 m²)

Wohnungsgrundfläche: 59,55 m²
Balkon: 12,4 m²
Gesamte Nettofläche: 65,75 m²
og 3. wohnung nr. 9 (66,09 m²)

Wohnungsgrundfläche: 59,86 m²
Balkon: 12,45 m²
Gesamte Nettofläche: 66,09 m²
dachgeschoss wohnung nr. 10 (132,74 m²)

Wohnungsgrundfläche: 99,38 m²
Balkon: 66,71 m²
Gesamte Nettofläche: 132,74 m²
Wenn sie Interesse haben, nehmen sie die Kontakt mit uns auf!
- iroda@antonkonstrukt.com
- +36 62 / 663 – 654


















